[ 69431 ] 関内の駅近く伊勢佐木町モールで好立地の商業ビルです。
・JR京浜東北、根岸線「関内駅」徒歩5分
・スケルトン
・賃貸保証:要加入
・内覧:(要事前予約)
・ごみ処理代:相談 (月額)
・看板設置料:相談(初回)
・諸条件ご相談ください。
・入居時期:2027年6月竣工予定
地域 |
神奈川県横浜市中区 伊勢佐木町1-7-6 |
||
業態 |
飲食店 |
||
最寄駅 |
JR根岸線 関内駅 |
||
坪数 |
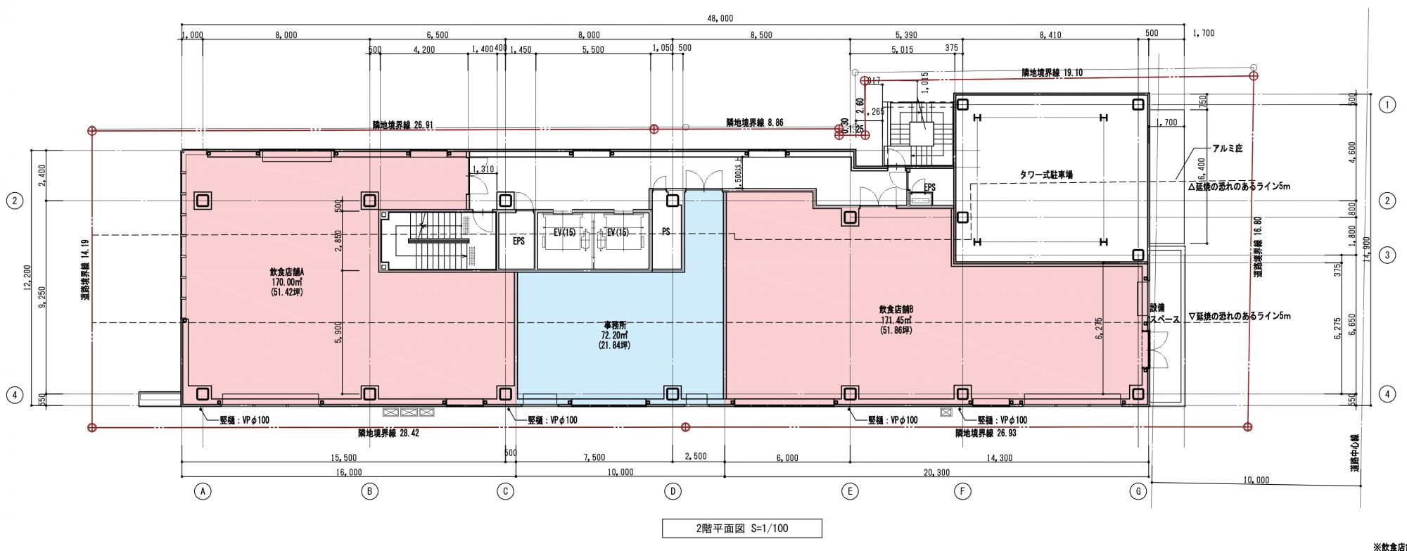
51.86坪 |
賃料 |
114.092万円 |
階数 |
2階 |
敷金/保証金 |
応相談 |
造作価格 |
0万円 |
||
アクセス数 |
336件 |
店舗情報
| 店舗の状態 | − | ||
|---|---|---|---|
| 業態:大分類 | 飲食店 | 業態:中分類 | レストラン |
| 業態名 | − | ||
| フランチャイズ区分 | − | フランチャイズブランド名 | − |
| 立地区分 | − | 賃貸借区分 | 賃貸物件 |
| 営業開始年月 | − | 初期投資総額 | − |
| 出展タイトル | 関内の駅近く伊勢佐木町モールで好立地の商業ビルです。 | ||
|---|---|---|---|
| 出展方法 | 一般取引(スケルトン) | ||
| 住所 | 神奈川県横浜市中区 伊勢佐木町1-7-6 | ||
|---|---|---|---|
| 駐車場台数 | (占有) 20台 (共有) −台 | ||
| 前面道路 | − | 号線 | −号線 |
| 交通手段 | (沿線) JR根岸線 (最寄駅) 関内駅 (距離) 徒歩 5分 | ||
| 店舗階数 | (店舗) 2階 / (建物) −階 | 店舗階数:備考 | 8階建ての2階 |
| 建坪数(店舗坪数) | 51.86坪 (171.44平米) | 敷坪数 | − 坪 (− 平米) |
| 建物築年 | − 年 | ||
| 席数 | (席数) −席 (備考) − | ||
| 店舗情報:備考 | − | ||
| 店舗種別 | 賃貸物件 | ||
|---|---|---|---|
| 賃料 | 114.092万円(税込) | 管理費・共益金 | 0万円(税込) |
| 看板使用料 | − | 敷金・保証金 | 応相談 |
| 礼金 | 賃料の1ヶ月分 | ||
| 賃貸借契約種別 | 定期借家 | 賃貸借契約期間 | 10年間 |
| 更新料 | − | 業種制限 | − |
| 入居者制限 | − | 営業時間制限 | − |
| 解約前予告の期間 | 6ヶ月前 | 敷金・保証金償却の有無 | なし |
| 敷金・保証金償却:備考 | − | ||
| 建築協力金の有無 | − | 建築協力金の金額 | − |
| 建築協力金返済期間 | − | 建築協力金:備考 | − |
| 物件管理者情報 | 株式会社ライフ・ドゥ(神奈川県知事(5)24692) | ||
| 賃貸借条件:備考 | − | ||
設備情報
| ダクト | − | グリスト | − |
|---|---|---|---|
| リース残高 | − | リース対象物品 | − |
| リース:備考 | − | ||
| 直近の改修日 | − | 改修費用 | − |
| 改修の内容 | − | ||
| 譲渡対象外造作物 | − | ||
| 設備情報:備考 | − | ||