NEW [ 70654 ] 学園通り沿い!自由が丘駅徒歩4分の1階路面スケルトン物件
★外観/店前動画★https://youtu.be/F0C80fCZLPI
●東急大井町線 自由が丘 徒歩4分/東急東横線 自由が丘 徒歩4分/東急大井町線 九品仏 徒歩11分
●賃貸保証:要加入
●定期借家契約:5年
●飲食:軽飲食のみ可
●外国籍相談
●営業時間相談
●看板料は賃料に含む
●諸条件ご相談ください。
●入居時期:相談
++++++++++++++++++++
※視察のお申込は日程調整の都合上前もってご連絡ください。
※お問い合わせ頂くタイミングにより、決まってしまっている場合がございます。
【電話のお問合せ】
0120-99-8538(平日10時-18時)
物件を見たい・詳しい情報を知りたい、など お気軽にお問合せください。
地域 |
東京都目黒区 自由が丘2-9-14dot.jiyugaoka1F② |
||
業態 |
スケルトン |
||
最寄駅 |
東急東横線 自由が丘駅 |
||
坪数 |
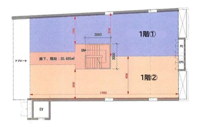
24.06坪 |
賃料 |
185.262万円 |
階数 |
1階 |
敷金/保証金 |
賃料の10ヶ月分 |
造作価格 |
0万円 |
||
アクセス数 |
212件 |
店舗情報
| 店舗の状態 | − | ||
|---|---|---|---|
| 業態:大分類 | スケルトン | 業態:中分類 | 軽飲食可 |
| 業態名 | − | ||
| フランチャイズ区分 | − | フランチャイズブランド名 | − |
| 立地区分 | − | 賃貸借区分 | 賃貸物件 |
| 営業開始年月 | − | 初期投資総額 | − |
| 出展タイトル | 学園通り沿い!自由が丘駅徒歩4分の1階路面スケルトン物件 | ||
|---|---|---|---|
| 出展方法 | 一般取引(スケルトン) | ||
| 住所 | 東京都目黒区 自由が丘2-9-14dot.jiyugaoka1F② | ||
|---|---|---|---|
| 駐車場台数 | (占有) −台 (共有) −台 | ||
| 前面道路 | − | 号線 | −号線 |
| 交通手段 | (沿線) 東急東横線 (最寄駅) 自由が丘駅 (距離) 徒歩 4分 | ||
| 店舗階数 | (店舗) 1階 / (建物) −階 | 店舗階数:備考 | − |
| 建坪数(店舗坪数) | 24.06坪 (79.53平米) | 敷坪数 | − 坪 (− 平米) |
| 建物築年 | − 年 | ||
| 席数 | (席数) −席 (備考) − | ||
| 店舗情報:備考 | − | ||
| 店舗種別 | 賃貸物件 | ||
|---|---|---|---|
| 賃料 | 185.262万円(税込) | 管理費・共益金 | 0万円(税込) |
| 看板使用料 | − | 敷金・保証金 | 賃料の10ヶ月分 |
| 礼金 | 0万円 | ||
| 賃貸借契約種別 | 定期借家 | 賃貸借契約期間 | 5年 |
| 更新料 | − | 業種制限 | 飲食:軽飲食のみ可 |
| 入居者制限 | 外国籍相談 | 営業時間制限 | 営業時間相談 |
| 解約前予告の期間 | −ヶ月前 | 敷金・保証金償却の有無 | − |
| 敷金・保証金償却:備考 | − | ||
| 建築協力金の有無 | − | 建築協力金の金額 | − |
| 建築協力金返済期間 | − | 建築協力金:備考 | − |
| 物件管理者情報 | 株式会社M&Aオークション(東京都知事(4)第85509号) | ||
| 賃貸借条件:備考 | − | ||
設備情報
| ダクト | − | グリスト | − |
|---|---|---|---|
| リース残高 | − | リース対象物品 | − |
| リース:備考 | − | ||
| 直近の改修日 | − | 改修費用 | − |
| 改修の内容 | − | ||
| 譲渡対象外造作物 | − | ||
| 設備情報:備考 | − | ||