NEW [ 70915 ] 駅近路面店!鵠沼海岸駅徒歩2分の1階新築スケルトン物件
●小田急江ノ島線 鵠沼海岸 徒歩2分
●焼肉等においや煙の強い業態不可
●外国籍相談(日本語に問題のない方)
●賃貸保証:加入要
●深夜、早朝営業不可(0:00~6:00頃)
●定期借家5年契約(再契約相談可)
●再契約料:新賃料1ヶ月
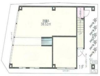
●平面図の点線部分(店舗A側のみ)は、壁を作る場合、借主負担で作成。
●壁、床、天井を含む室内の設計図の提出義務あり。建築士のチェックがあります。
●諸条件ご相談ください。
●入居時期:2025年12月中旬予定
+++++++++++++++++++++++++++++++++
※視察のお申込は日程調整の都合上前もってご連絡ください。
※お問い合わせ頂くタイミングにより、決まってしまっている場合がございます。
【電話のお問合せ】
0120-99-8538(平日10時-18時)
物件を見たい・詳しい情報を知りたい、など お気軽にお問合せください。
地域 |
神奈川県藤沢市 鵠沼海岸3-1-11 平和堂ビル1F_A店舗 |
||
業態 |
スケルトン |
||
最寄駅 |
小田急江ノ島線 鵠沼海岸駅 |
||
坪数 |
11.65坪 |
賃料 |
26.906万円 |
階数 |
1階 |
敷金/保証金 |
賃料の3ヶ月分 |
造作価格 |
0万円 |
||
アクセス数 |
34件 |
店舗情報
| 店舗の状態 | − | ||
|---|---|---|---|
| 業態:大分類 | スケルトン | 業態:中分類 | 重飲食可 |
| 業態名 | − | ||
| フランチャイズ区分 | − | フランチャイズブランド名 | − |
| 立地区分 | − | 賃貸借区分 | 賃貸物件 |
| 営業開始年月 | − | 初期投資総額 | − |
| 出展タイトル | 駅近路面店!鵠沼海岸駅徒歩2分の1階新築スケルトン物件 | ||
|---|---|---|---|
| 出展方法 | 一般取引(スケルトン) | ||
| 住所 | 神奈川県藤沢市 鵠沼海岸3-1-11 平和堂ビル1F_A店舗 | ||
|---|---|---|---|
| 駐車場台数 | (占有) −台 (共有) −台 | ||
| 前面道路 | − | 号線 | −号線 |
| 交通手段 | (沿線) 小田急江ノ島線 (最寄駅) 鵠沼海岸駅 (距離) 徒歩 2分 | ||
| 店舗階数 | (店舗) 1階 / (建物) −階 | 店舗階数:備考 | − |
| 建坪数(店舗坪数) | 11.65坪 (38.52平米) | 敷坪数 | − 坪 (− 平米) |
| 建物築年 | − 年 | ||
| 席数 | (席数) −席 (備考) − | ||
| 店舗情報:備考 | − | ||
| 店舗種別 | 賃貸物件 | ||
|---|---|---|---|
| 賃料 | 26.906万円(税込) | 管理費・共益金 | 0.5万円(税込) |
| 看板使用料 | − | 敷金・保証金 | 賃料の3ヶ月分 |
| 礼金 | 賃料の1ヶ月分 | ||
| 賃貸借契約種別 | 定期借家 | 賃貸借契約期間 | 5年(再契約相談可) |
| 更新料 | − | 業種制限 | 焼肉等においや煙の強い業態不可 |
| 入居者制限 | − | 営業時間制限 | 深夜、早朝営業不可(0:00~6:00頃) |
| 解約前予告の期間 | −ヶ月前 | 敷金・保証金償却の有無 | − |
| 敷金・保証金償却:備考 | − | ||
| 建築協力金の有無 | − | 建築協力金の金額 | − |
| 建築協力金返済期間 | − | 建築協力金:備考 | − |
| 物件管理者情報 | 株式会社M&Aオークション(東京都知事(4)第85509号) | ||
| 賃貸借条件:備考 | 再契約料:新賃料1ヶ月 | ||
設備情報
| ダクト | − | グリスト | − |
|---|---|---|---|
| リース残高 | − | リース対象物品 | − |
| リース:備考 | − | ||
| 直近の改修日 | − | 改修費用 | − |
| 改修の内容 | − | ||
| 譲渡対象外造作物 | − | ||
| 設備情報:備考 | − | ||