NEW [ 71046 ] 武蔵小金井駅徒歩1分!商店街沿い1階バー居抜き物件
●JR中央本線 武蔵小金井 徒歩1分
●造作譲渡費:相談
●冷蔵庫・製氷機あり 
●賃貸保証:要加入
●深夜営業可能/カラオケ使用の場合は12時半まで 
●諸条件ご相談ください。
●入居時期:相談
+++++++++++++++++++++++++++++++++
※視察のお申込は日程調整の都合上前もってご連絡ください。
※お問い合わせ頂くタイミングにより、決まってしまっている場合がございます。
【電話のお問合せ】
0120-99-8538(平日10時-18時)
物件を見たい・詳しい情報を知りたい、など お気軽にお問合せください。
地域  | 
									東京都小金井市 本町1-16-6_1F  | 
								||
業態  | 
									飲食店  | 
								||
最寄駅  | 
									JR中央線(快速) 武蔵小金井駅  | 
								||
坪数  | 
									13.52坪  | 
									賃料  | 
									24万円  | 
								
階数  | 
									1階  | 
									敷金/保証金  | 
									賃料の4ヶ月分  | 
								
造作価格  | 
									応相談  | 
								||
アクセス数  | 
									13件  | 
								
店舗情報
| 店舗の状態 | − | ||
|---|---|---|---|
| 業態:大分類 | 飲食店 | 業態:中分類 | バー | 
| 業態名 | − | ||
| フランチャイズ区分 | − | フランチャイズブランド名 | − | 
| 立地区分 | − | 賃貸借区分 | 賃貸物件 | 
| 営業開始年月 | − | 初期投資総額 | − | 
| 出展タイトル | 武蔵小金井駅徒歩1分!商店街沿い1階バー居抜き物件 | ||
|---|---|---|---|
| 出展方法 | 一般取引(居抜き) | ||
| 住所 | 東京都小金井市 本町1-16-6_1F | ||
|---|---|---|---|
| 駐車場台数 | (占有) −台 (共有) −台 | ||
| 前面道路 | − | 号線 | −号線 | 
| 交通手段 | (沿線) JR中央線(快速) (最寄駅) 武蔵小金井駅 (距離) 徒歩 1分 | ||
| 店舗階数 | (店舗) 1階 / (建物) −階 | 店舗階数:備考 | − | 
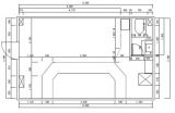
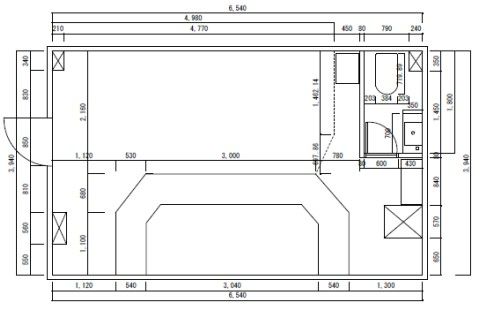
| 建坪数(店舗坪数) | 13.52坪 (44.7平米) | 敷坪数 | − 坪 (− 平米) | 
| 建物築年 | − 年 | ||
| 席数 | (席数) −席 (備考) − | ||
| 店舗情報:備考 | − | ||
| 店舗種別 | 賃貸物件 | ||
|---|---|---|---|
| 賃料 | 24万円(税込) | 管理費・共益金 | 0万円(税込) | 
| 看板使用料 | − | 敷金・保証金 | 賃料の4ヶ月分 | 
| 礼金 | 賃料の1ヶ月分 | ||
| 賃貸借契約種別 | 普通借家 | 賃貸借契約期間 | 2年 | 
| 更新料 | 賃料の1ヶ月分 | 業種制限 | − | 
| 入居者制限 | − | 営業時間制限 | 深夜営業可能/カラオケ使用の場合は12時半まで | 
| 解約前予告の期間 | −ヶ月前 | 敷金・保証金償却の有無 | − | 
| 敷金・保証金償却:備考 | − | ||
| 建築協力金の有無 | − | 建築協力金の金額 | − | 
| 建築協力金返済期間 | − | 建築協力金:備考 | − | 
| 物件管理者情報 | 株式会社M&Aオークション(東京都知事(4)第85509号) | ||
| 賃貸借条件:備考 | − | ||
設備情報
| ダクト | − | グリスト | − | 
|---|---|---|---|
| リース残高 | − | リース対象物品 | − | 
| リース:備考 | − | ||
| 直近の改修日 | − | 改修費用 | − | 
| 改修の内容 | − | ||
| 譲渡対象外造作物 | − | ||
| 設備情報:備考 | − | ||