NEW [ 71096 ] −
・阪急京都線「東向日駅」徒歩4分
・JR京都線「向日町駅」徒歩6分
・2Wayアクセスの好立地!
・敷金なし(礼金1ヵ月分)
・重飲食も可。
・即入居OK!
地域 |
京都府向日市 寺戸町西田中瀬3-6 |
||
業態 |
飲食店 |
||
最寄駅 |
阪急京都本線 東向日駅 |
||
坪数 |
22.00坪 |
賃料 |
38.5万円 |
階数 |
1階 |
敷金/保証金 |
0万円/0万円 |
造作価格 |
0万円 |
||
アクセス数 |
14件 |
店舗情報
| 店舗の状態 | 閉店済み | ||
|---|---|---|---|
| 業態:大分類 | 飲食店 | 業態:中分類 | その他飲食店 |
| 業態名 | − | ||
| フランチャイズ区分 | − | フランチャイズブランド名 | − |
| 立地区分 | − | 賃貸借区分 | 賃貸物件 |
| 営業開始年月 | − | 初期投資総額 | − |
| 出展タイトル | − | ||
|---|---|---|---|
| 出展方法 | 一般取引(スケルトン) | ||
| 住所 | 京都府向日市 寺戸町西田中瀬3-6 | ||
|---|---|---|---|
| 駐車場台数 | (占有) −台 (共有) −台 | ||
| 前面道路 | − | 号線 | −号線 |
| 交通手段 | (沿線) 阪急京都本線 (最寄駅) 東向日駅 (距離) 徒歩 4分 | ||
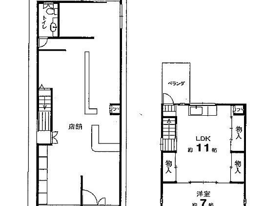
| 店舗階数 | (店舗) 1階 / (建物) −階 | 店舗階数:備考 | 別途2階11.97坪(事務所・居住スペース)あり |
| 建坪数(店舗坪数) | 22坪 (72.73平米) | 敷坪数 | − 坪 (− 平米) |
| 建物築年 | − 年 | ||
| 席数 | (席数) −席 (備考) − | ||
| 店舗情報:備考 | − | ||
| 店舗種別 | 賃貸物件 | ||
|---|---|---|---|
| 賃料 | 38.5万円(税込) | 管理費・共益金 | 0万円(税込) |
| 看板使用料 | − | 敷金・保証金 | 敷金0万円/保証金0万円 |
| 礼金 | 38.5万円 | ||
| 賃貸借契約種別 | − | 賃貸借契約期間 | − |
| 更新料 | − | 業種制限 | − |
| 入居者制限 | − | 営業時間制限 | − |
| 解約前予告の期間 | −ヶ月前 | 敷金・保証金償却の有無 | − |
| 敷金・保証金償却:備考 | − | ||
| 建築協力金の有無 | − | 建築協力金の金額 | − |
| 建築協力金返済期間 | − | 建築協力金:備考 | − |
| 物件管理者情報 | 株式会社大都プランニング(京都府知事(10)第7396号) | ||
| 賃貸借条件:備考 | − | ||
設備情報
| ダクト | − | グリスト | − |
|---|---|---|---|
| リース残高 | − | リース対象物品 | − |
| リース:備考 | − | ||
| 直近の改修日 | − | 改修費用 | − |
| 改修の内容 | − | ||
| 譲渡対象外造作物 | − | ||
| 設備情報:備考 | − | ||