NEW [ 71365 ] 松阪市・大型商業施設の飲食店居抜き・造作無償
◎造作無償物件
(内装造作、厨房機器等の全てを無償(0円)譲渡!リース物件無し!)
◎JR徳和駅より徒歩10分、松阪環状線沿い。駐車場500台強完備
◎大型商業施設敷地内1階の飲食店【居抜き】
◎18年続いた中華料理店、後継者無く閉店
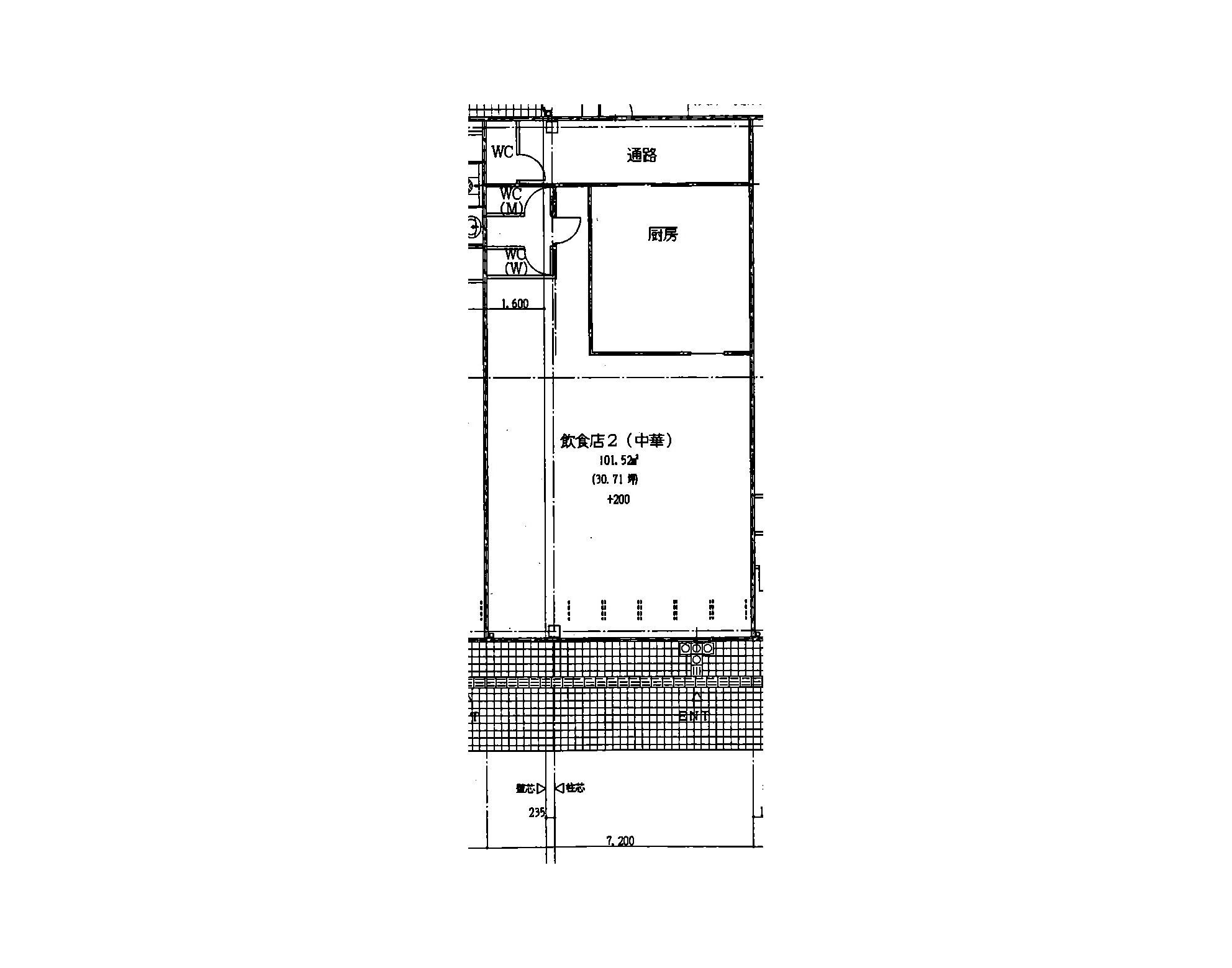
◎30坪強(約40席)プラス専有倉庫付で家賃16万円弱
◎現在も通常営業中につき、内覧は事前に予約願います。
地域 |
三重県松阪市 下村町 |
||
業態 |
飲食店 |
||
最寄駅 |
JR紀勢本線 徳和駅 |
||
坪数 |
30.67坪 |
賃料 |
15.84万円 |
階数 |
1階 |
敷金/保証金 |
200万円/0万円 |
造作価格 |
0万円 |
||
アクセス数 |
587件 |
店舗情報
| 店舗の状態 | 営業中 | ||
|---|---|---|---|
| 業態:大分類 | 飲食店 | 業態:中分類 | 中華 |
| 業態名 | 中華料理店 | ||
| フランチャイズ区分 | フランチャイズ非加盟 | フランチャイズブランド名 | − |
| 立地区分 | ショッピングセンター:ショッピングセンター、または、商業施設 | 賃貸借区分 | 賃貸物件 |
| 営業開始年月 | 2011年12月 | 初期投資総額 | − |
| 出展タイトル | 松阪市・大型商業施設の飲食店居抜き・造作無償 | ||
|---|---|---|---|
| 出展方法 | 一般取引(居抜き) | ||
| 住所 | 三重県松阪市 下村町 | ||
|---|---|---|---|
| 駐車場台数 | (占有) −台 (共有) 540台 | ||
| 前面道路 | 都道府県道 | 号線 | 756号線 |
| 交通手段 | (沿線) JR紀勢本線 (最寄駅) 徳和駅 (距離) 徒歩 10分 | ||
| 店舗階数 | (店舗) 1階 / (建物) 1階 | 店舗階数:備考 | − |
| 建坪数(店舗坪数) | 30.67坪 (101.4平米) | 敷坪数 | − 坪 (− 平米) |
| 建物築年 | − 年 | ||
| 席数 | (席数) 39席 (備考) カウンター7席 テーブル32席 | ||
| 店舗情報:備考 | − | ||
| 店舗種別 | 賃貸物件 | ||
|---|---|---|---|
| 賃料 | 15.84万円(税込) | 管理費・共益金 | 0万円(税込) |
| 看板使用料 | 0万円 | 敷金・保証金 | 敷金200万円/保証金0万円 |
| 礼金 | 0万円 | ||
| 賃貸借契約種別 | 定期借家 | 賃貸借契約期間 | 3年 |
| 更新料 | 0万円 | 業種制限 | − |
| 入居者制限 | − | 営業時間制限 | − |
| 解約前予告の期間 | 6ヶ月前 | 敷金・保証金償却の有無 | なし |
| 敷金・保証金償却:備考 | 中途解約時、違約金有り | ||
| 建築協力金の有無 | 無し | 建築協力金の金額 | − |
| 建築協力金返済期間 | − | 建築協力金:備考 | − |
| 物件管理者情報 | 株式会社林企画(岐阜県知事(2)第5066号) | ||
| 賃貸借条件:備考 | − | ||
設備情報
| ダクト | 有り | グリスト | 有り |
|---|---|---|---|
| リース残高 | 0万円 | リース対象物品 | 無し |
| リース:備考 | − | ||
| 直近の改修日 | − | 改修費用 | − |
| 改修の内容 | − | ||
| 譲渡対象外造作物 | − | ||
| 設備情報:備考 | − | ||