NEW [ 72022 ] JR「高田馬場駅」徒歩3分。さかえ通り沿いB1階ジンギスカン店居抜き物件☆
JR「高田馬場駅」徒歩3分
さかえ通り沿いB1階ジンギスカン店居抜き物件
造作譲渡:相談
NG業態:カラオケ不可
契約満了日:2031年4月30日
中途礼金:賃料1.5ヵ月(2028年4月30日発生)
不動産手数料:賃料1か月
保証会社/保険:要加入
引渡し:契約後2週間
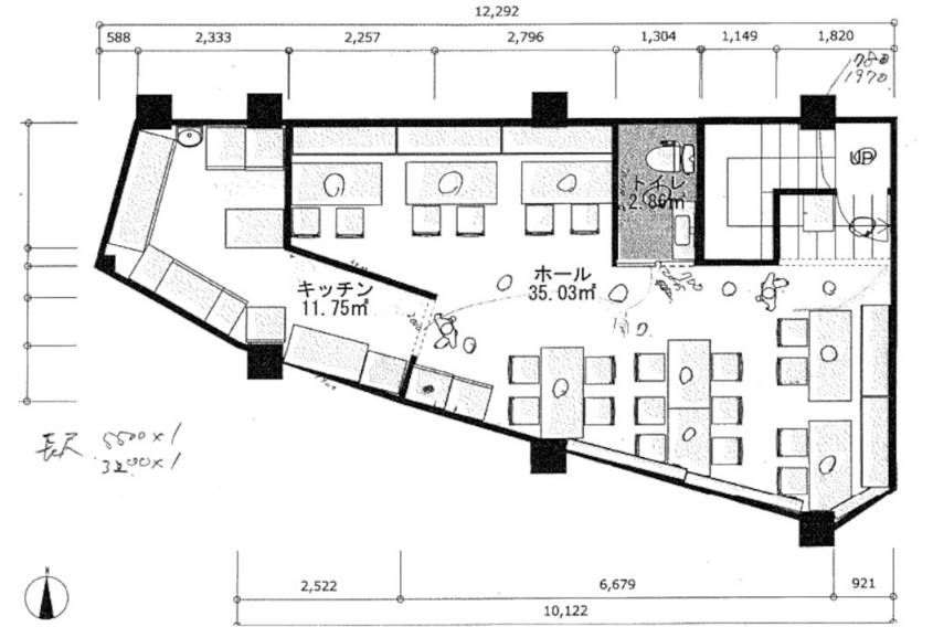
駅前繁華街エリアB1階ジンギスカン店居抜き物件です。
学生含め、近隣会社員や地元住民等幅広い客層の取り込みが曜日を問わず可能です。
地域 |
東京都新宿区 高田馬場3丁目 |
||
業態 |
飲食店 |
||
最寄駅 |
JR山手線 高田馬場駅 |
||
坪数 |
17.54坪 |
賃料 |
46.2万円 |
階数 |
地下1階 |
敷金/保証金 |
賃料の10ヶ月分 |
造作価格 |
応相談 |
||
アクセス数 |
11件 |
店舗情報
| 店舗の状態 | − | ||
|---|---|---|---|
| 業態:大分類 | 飲食店 | 業態:中分類 | 焼肉 |
| 業態名 | − | ||
| フランチャイズ区分 | − | フランチャイズブランド名 | − |
| 立地区分 | − | 賃貸借区分 | 賃貸物件 |
| 営業開始年月 | − | 初期投資総額 | − |
| 出展タイトル | JR「高田馬場駅」徒歩3分。さかえ通り沿いB1階ジンギスカン店居抜き物件☆ | ||
|---|---|---|---|
| 出展方法 | 一般取引(居抜き) | ||
| 住所 | 東京都新宿区 高田馬場3丁目 | ||
|---|---|---|---|
| 駐車場台数 | (占有) −台 (共有) −台 | ||
| 前面道路 | − | 号線 | −号線 |
| 交通手段 | (沿線) JR山手線 (最寄駅) 高田馬場駅 (距離) 徒歩 3分 | ||
| 店舗階数 | (店舗) 地下1階 / (建物) −階 | 店舗階数:備考 | − |
| 建坪数(店舗坪数) | 17.54坪 (57.98平米) | 敷坪数 | − 坪 (− 平米) |
| 建物築年 | − 年 | ||
| 席数 | (席数) −席 (備考) − | ||
| 店舗情報:備考 | − | ||
| 店舗種別 | 賃貸物件 | ||
|---|---|---|---|
| 賃料 | 46.2万円(税込) | 管理費・共益金 | 3.3万円(税込) |
| 看板使用料 | − | 敷金・保証金 | 賃料の10ヶ月分 |
| 礼金 | 賃料の2ヶ月分 | ||
| 賃貸借契約種別 | 定期借家 | 賃貸借契約期間 | 5年*再契約料:新賃料1.5か月分 |
| 更新料 | − | 業種制限 | − |
| 入居者制限 | − | 営業時間制限 | − |
| 解約前予告の期間 | −ヶ月前 | 敷金・保証金償却の有無 | 有り |
| 敷金・保証金償却:備考 | 3か月 | ||
| 建築協力金の有無 | − | 建築協力金の金額 | − |
| 建築協力金返済期間 | − | 建築協力金:備考 | − |
| 物件管理者情報 | 株式会社ウェンズインターナショナル | ||
| 賃貸借条件:備考 | − | ||
設備情報
| ダクト | 屋上 | グリスト | 床置き |
|---|---|---|---|
| リース残高 | − | リース対象物品 | − |
| リース:備考 | − | ||
| 直近の改修日 | − | 改修費用 | − |
| 改修の内容 | − | ||
| 譲渡対象外造作物 | − | ||
| 設備情報:備考 | − | ||