NEW [ 72108 ] 下北線路街!下北沢駅徒歩4分の2階カフェ居抜き物件
★外観/店前動画★https://youtube.com/shorts/yj9i4472ptw
●小田急線 下北沢 徒歩4分
●造作譲渡費:150万円(税別)
●販促費:9,702円(税別)/月
●内装監理費:272,200円(税別)
●鍵交換費:50,000円(税別)
●出店準備金:82,500円(税別)
●定期借家契約:5年(再契約相談可)
●重飲食相談可(匂い・油の強い業態不可)
●外国籍相談可
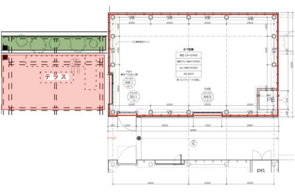
●バルコニー(テラス):12.00㎡
●諸条件ご相談ください。
●入居時期:相談
+++++++++++++++++++
※視察のお申込は日程調整の都合上前もってご連絡ください。
※お問い合わせ頂くタイミングにより、決まってしまっている場合がございます。
【電話のお問合せ】
0120-99-8538(平日10時-18時)
物件を見たい・詳しい情報を知りたい、など お気軽にお問合せください。
地域 |
東京都世田谷区 北沢3-19-20reload2F2-7区画 |
||
業態 |
飲食店 |
||
最寄駅 |
小田急線 下北沢駅 |
||
坪数 |
13.86坪 |
賃料 |
41.1642万円 |
階数 |
2階 |
敷金/保証金 |
賃料の10ヶ月分 |
造作価格 |
165万円 |
||
アクセス数 |
174件 |
店舗情報
| 店舗の状態 | 閉店済み | ||
|---|---|---|---|
| 業態:大分類 | 飲食店 | 業態:中分類 | カフェ |
| 業態名 | − | ||
| フランチャイズ区分 | − | フランチャイズブランド名 | − |
| 立地区分 | − | 賃貸借区分 | 賃貸物件 |
| 営業開始年月 | − | 初期投資総額 | − |
| 出展タイトル | 下北線路街!下北沢駅徒歩4分の2階カフェ居抜き物件 | ||
|---|---|---|---|
| 出展方法 | 一般取引(居抜き) | ||
| 住所 | 東京都世田谷区 北沢3-19-20reload2F2-7区画 | ||
|---|---|---|---|
| 駐車場台数 | (占有) −台 (共有) −台 | ||
| 前面道路 | − | 号線 | −号線 |
| 交通手段 | (沿線) 小田急線 (最寄駅) 下北沢駅 (距離) 徒歩 4分 | ||
| 店舗階数 | (店舗) 2階 / (建物) −階 | 店舗階数:備考 | − |
| 建坪数(店舗坪数) | 13.86坪 (45.83平米) | 敷坪数 | − 坪 (− 平米) |
| 建物築年 | − 年 | ||
| 席数 | (席数) −席 (備考) − | ||
| 店舗情報:備考 | − | ||
| 店舗種別 | 賃貸物件 | ||
|---|---|---|---|
| 賃料 | 41.1642万円(税込) | 管理費・共益金 | 1.6771万円(税込) |
| 看板使用料 | − | 敷金・保証金 | 賃料の10ヶ月分 |
| 礼金 | 0万円 | ||
| 賃貸借契約種別 | 定期借家 | 賃貸借契約期間 | 5年(再契約相談可) |
| 更新料 | − | 業種制限 | 重飲食相談可(匂い・油の強い業態不可) |
| 入居者制限 | 外国籍相談可 | 営業時間制限 | − |
| 解約前予告の期間 | −ヶ月前 | 敷金・保証金償却の有無 | 有り |
| 敷金・保証金償却:備考 | 2ヶ月 | ||
| 建築協力金の有無 | − | 建築協力金の金額 | − |
| 建築協力金返済期間 | − | 建築協力金:備考 | − |
| 物件管理者情報 | 株式会社M&Aオークション(東京都知事(4)第85509号) | ||
| 賃貸借条件:備考 | − | ||
設備情報
| ダクト | − | グリスト | − |
|---|---|---|---|
| リース残高 | − | リース対象物品 | − |
| リース:備考 | − | ||
| 直近の改修日 | − | 改修費用 | − |
| 改修の内容 | − | ||
| 譲渡対象外造作物 | − | ||
| 設備情報:備考 | − | ||