NEW [ 72234 ] JR「池袋駅」徒歩8分。大通り沿い1階テイクアウト店居抜き物件☆
JR「池袋駅」徒歩8分
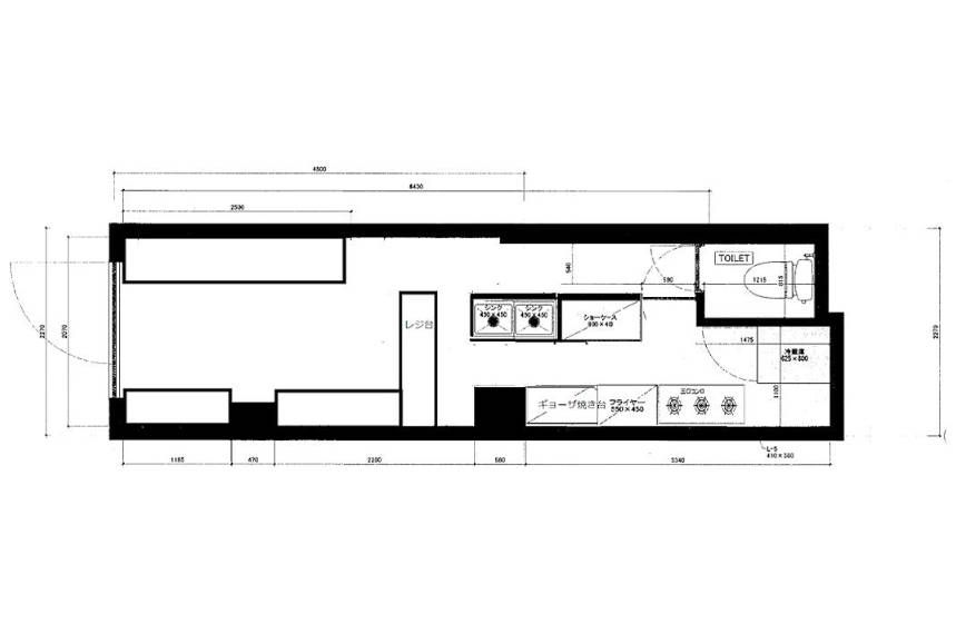
1階テイクアウト店居抜き物件
造作譲渡:55万円
NG業態:シーシャ不可
契約満了日:2032年2月29日
中途礼金:3年毎賃料1.5ヵ月(2029年2月28日発生)
不動産手数料:賃料1か月
保証会社/保険:要加入
引渡し:即入居可
大通り沿い1階ファーストフード・テイクアウト店居抜き物件です。
オフィスビルが建ち並ぶエリアで近隣会社員の昼夜問わない飲食需要が見込めます。
地域 |
東京都豊島区 東池袋3丁目 |
||
業態 |
飲食店 |
||
最寄駅 |
JR山手線 池袋駅 |
||
坪数 |
5.50坪 |
賃料 |
27.5万円 |
階数 |
1階 |
敷金/保証金 |
賃料の10ヶ月分 |
造作価格 |
55万円 |
||
アクセス数 |
13件 |
店舗情報
| 店舗の状態 | − | ||
|---|---|---|---|
| 業態:大分類 | 飲食店 | 業態:中分類 | テイクアウト |
| 業態名 | − | ||
| フランチャイズ区分 | − | フランチャイズブランド名 | − |
| 立地区分 | − | 賃貸借区分 | 賃貸物件 |
| 営業開始年月 | − | 初期投資総額 | − |
| 出展タイトル | JR「池袋駅」徒歩8分。大通り沿い1階テイクアウト店居抜き物件☆ | ||
|---|---|---|---|
| 出展方法 | 一般取引(居抜き) | ||
| 住所 | 東京都豊島区 東池袋3丁目 | ||
|---|---|---|---|
| 駐車場台数 | (占有) −台 (共有) −台 | ||
| 前面道路 | − | 号線 | −号線 |
| 交通手段 | (沿線) JR山手線 (最寄駅) 池袋駅 (距離) 徒歩 8分 | ||
| 店舗階数 | (店舗) 1階 / (建物) −階 | 店舗階数:備考 | − |
| 建坪数(店舗坪数) | 5.5坪 (18.18平米) | 敷坪数 | − 坪 (− 平米) |
| 建物築年 | − 年 | ||
| 席数 | (席数) −席 (備考) − | ||
| 店舗情報:備考 | − | ||
| 店舗種別 | 賃貸物件 | ||
|---|---|---|---|
| 賃料 | 27.5万円(税込) | 管理費・共益金 | 0.55万円(税込) |
| 看板使用料 | − | 敷金・保証金 | 賃料の10ヶ月分 |
| 礼金 | 賃料の2ヶ月分 | ||
| 賃貸借契約種別 | 定期借家 | 賃貸借契約期間 | 6年*再契約料1.5か月 |
| 更新料 | − | 業種制限 | − |
| 入居者制限 | − | 営業時間制限 | 24時迄 |
| 解約前予告の期間 | −ヶ月前 | 敷金・保証金償却の有無 | 有り |
| 敷金・保証金償却:備考 | 3か月 | ||
| 建築協力金の有無 | − | 建築協力金の金額 | − |
| 建築協力金返済期間 | − | 建築協力金:備考 | − |
| 物件管理者情報 | 株式会社ウェンズインターナショナル | ||
| 賃貸借条件:備考 | − | ||
設備情報
| ダクト | 直吹き | グリスト | 埋設 |
|---|---|---|---|
| リース残高 | − | リース対象物品 | − |
| リース:備考 | − | ||
| 直近の改修日 | − | 改修費用 | − |
| 改修の内容 | − | ||
| 譲渡対象外造作物 | − | ||
| 設備情報:備考 | − | ||