NEW [ 72532 ] JR「目黒駅」徒歩5分。権之助商店街沿い1.2階喫茶店居抜き物件☆
JR「目黒駅」徒歩5分
権之助坂商店街沿い1.2階喫茶店居抜き物件
造作譲渡:相談
NG業態::ラーメン不可
契約満了日:2032年4月30日
中途礼金:賃料1.5ヵ月(2029年4月30日発生)
町会費:月300円/下水道会費:月3000円/アーケード会員:月2400円
不動産手数料:賃料1か月
保証会社/保険:要加入
引渡し:2026年5月1日
曜日時間帯を問わず人通りのある権之助商店街沿い1.2階物件です。
地元住民、近隣会社員、買い物客等幅広い客層の取り込みが可能です。
地域 |
東京都目黒区 目黒1丁目 |
||
業態 |
飲食店 |
||
最寄駅 |
JR山手線 目黒駅 |
||
坪数 |
17.03坪 |
賃料 |
82.5万円 |
階数 |
1階 |
敷金/保証金 |
賃料の8ヶ月分 |
造作価格 |
応相談 |
||
アクセス数 |
34件 |
店舗情報
| 店舗の状態 | − | ||
|---|---|---|---|
| 業態:大分類 | 飲食店 | 業態:中分類 | カフェ |
| 業態名 | − | ||
| フランチャイズ区分 | − | フランチャイズブランド名 | − |
| 立地区分 | − | 賃貸借区分 | 賃貸物件 |
| 営業開始年月 | − | 初期投資総額 | − |
| 出展タイトル | JR「目黒駅」徒歩5分。権之助商店街沿い1.2階喫茶店居抜き物件☆ | ||
|---|---|---|---|
| 出展方法 | 一般取引(居抜き) | ||
| 住所 | 東京都目黒区 目黒1丁目 | ||
|---|---|---|---|
| 駐車場台数 | (占有) −台 (共有) −台 | ||
| 前面道路 | − | 号線 | −号線 |
| 交通手段 | (沿線) JR山手線 (最寄駅) 目黒駅 (距離) 徒歩 5分 | ||
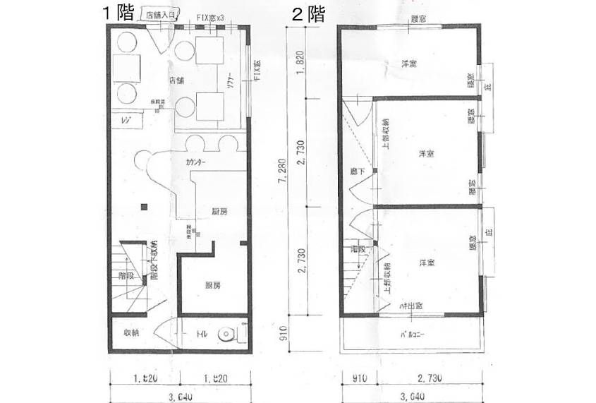
| 店舗階数 | (店舗) 1階 / (建物) −階 | 店舗階数:備考 | 1.2階一括 |
| 建坪数(店舗坪数) | 17.03坪 (56.3平米) | 敷坪数 | − 坪 (− 平米) |
| 建物築年 | − 年 | ||
| 席数 | (席数) −席 (備考) − | ||
| 店舗情報:備考 | − | ||
| 店舗種別 | 賃貸物件 | ||
|---|---|---|---|
| 賃料 | 82.5万円(税込) | 管理費・共益金 | 0万円(税込) |
| 看板使用料 | − | 敷金・保証金 | 賃料の8ヶ月分 |
| 礼金 | 賃料の3ヶ月分 | ||
| 賃貸借契約種別 | 定期借家 | 賃貸借契約期間 | 6年*再契約料1.5か月 |
| 更新料 | 賃料の1.5ヶ月分 | 業種制限 | − |
| 入居者制限 | − | 営業時間制限 | − |
| 解約前予告の期間 | −ヶ月前 | 敷金・保証金償却の有無 | 有り |
| 敷金・保証金償却:備考 | 3か月 | ||
| 建築協力金の有無 | − | 建築協力金の金額 | − |
| 建築協力金返済期間 | − | 建築協力金:備考 | − |
| 物件管理者情報 | 株式会社ウェンズインターナショナル | ||
| 賃貸借条件:備考 | − | ||
設備情報
| ダクト | 直吹き | グリスト | 無し |
|---|---|---|---|
| リース残高 | − | リース対象物品 | − |
| リース:備考 | − | ||
| 直近の改修日 | − | 改修費用 | − |
| 改修の内容 | − | ||
| 譲渡対象外造作物 | − | ||
| 設備情報:備考 | − | ||