NEW [ 72580 ] 上福岡駅徒歩3分の1階テイクアウトカフェ居抜き物件
●東武東上線 上福岡 徒歩3分/東武東上線 ふじみ野 徒歩25分/東武東上線 川越 徒歩59分
●造作譲渡費:相談
●賃貸保証:要加入
●プロパンガス
●ハウスクリーニング代110,000円(退去時)
●集金代行サービス必須(330円/月)
●鍵交換 50,000円(任意)
●諸条件ご相談ください。
●入居時期:相談
+++++++++++++++++++++++++++++++++
※視察のお申込は日程調整の都合上前もってご連絡ください。
※お問い合わせ頂くタイミングにより、決まってしまっている場合がございます。
【電話のお問合せ】
0120-99-8538(平日10時-18時)
物件を見たい・詳しい情報を知りたい、など お気軽にお問合せください。
地域 |
埼玉県ふじみ野市 上福岡1-12-2齋籐ビル1F |
||
業態 |
飲食店 |
||
最寄駅 |
東武東上線 上福岡駅 |
||
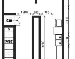
坪数 |
16.97坪 |
賃料 |
20万円 |
階数 |
1階 |
敷金/保証金 |
賃料の1ヶ月分 |
造作価格 |
応相談 |
||
アクセス数 |
73件 |
店舗情報
| 店舗の状態 | − | ||
|---|---|---|---|
| 業態:大分類 | 飲食店 | 業態:中分類 | カフェ |
| 業態名 | − | ||
| フランチャイズ区分 | − | フランチャイズブランド名 | − |
| 立地区分 | − | 賃貸借区分 | 賃貸物件 |
| 営業開始年月 | − | 初期投資総額 | − |
| 出展タイトル | 上福岡駅徒歩3分の1階テイクアウトカフェ居抜き物件 | ||
|---|---|---|---|
| 出展方法 | 一般取引(居抜き) | ||
| 住所 | 埼玉県ふじみ野市 上福岡1-12-2齋籐ビル1F | ||
|---|---|---|---|
| 駐車場台数 | (占有) −台 (共有) −台 | ||
| 前面道路 | − | 号線 | −号線 |
| 交通手段 | (沿線) 東武東上線 (最寄駅) 上福岡駅 (距離) 徒歩 3分 | ||
| 店舗階数 | (店舗) 1階 / (建物) −階 | 店舗階数:備考 | − |
| 建坪数(店舗坪数) | 16.97坪 (56.1平米) | 敷坪数 | − 坪 (− 平米) |
| 建物築年 | − 年 | ||
| 席数 | (席数) −席 (備考) − | ||
| 店舗情報:備考 | − | ||
| 店舗種別 | 賃貸物件 | ||
|---|---|---|---|
| 賃料 | 20万円(税込) | 管理費・共益金 | 1万円(税込) |
| 看板使用料 | − | 敷金・保証金 | 賃料の1ヶ月分 |
| 礼金 | 賃料の1ヶ月分 | ||
| 賃貸借契約種別 | 普通借家 | 賃貸借契約期間 | 3年 |
| 更新料 | 賃料の1ヶ月分 | 業種制限 | − |
| 入居者制限 | − | 営業時間制限 | − |
| 解約前予告の期間 | −ヶ月前 | 敷金・保証金償却の有無 | 有り |
| 敷金・保証金償却:備考 | 更新時100% | ||
| 建築協力金の有無 | − | 建築協力金の金額 | − |
| 建築協力金返済期間 | − | 建築協力金:備考 | − |
| 物件管理者情報 | 株式会社M&Aオークション(東京都知事(4)第85509号) | ||
| 賃貸借条件:備考 | − | ||
設備情報
| ダクト | − | グリスト | − |
|---|---|---|---|
| リース残高 | − | リース対象物品 | − |
| リース:備考 | − | ||
| 直近の改修日 | − | 改修費用 | − |
| 改修の内容 | − | ||
| 譲渡対象外造作物 | − | ||
| 設備情報:備考 | − | ||