NEW [ 72744 ] 焼肉店【居抜き】・一棟貸・江南市・県道沿い角地
◎一棟貸の焼肉店居抜き
◎江南岩倉線と県道184号線の交差点角地
◎隣接駐車場(約500㎡)の契約引継ぎ可能(月額33,000円)
◎賃料:税込み22万円
◎造作譲渡価格:200万円(応相談)
◎賃貸保証:要加入
◎即入居可・内覧も随時受付
地域 |
愛知県江南市 村久野町仲原 |
||
業態 |
飲食店 |
||
最寄駅 |
− |
||
坪数 |
23.11坪 |
賃料 |
22万円 |
階数 |
1階 |
敷金/保証金 |
0万円/66万円 |
造作価格 |
200万円 |
||
アクセス数 |
49件 |
店舗情報
| 店舗の状態 | 閉店済み | ||
|---|---|---|---|
| 業態:大分類 | 飲食店 | 業態:中分類 | 焼肉 |
| 業態名 | 焼肉店 | ||
| フランチャイズ区分 | フランチャイズ非加盟 | フランチャイズブランド名 | − |
| 立地区分 | 郊外型:専ら車での来店が見込まれる、または、車・自転車ともに来店が見込まれる | 賃貸借区分 | 賃貸物件 |
| 営業開始年月 | 2024年07月 | 初期投資総額 | 600万円 |
| 出展タイトル | 焼肉店【居抜き】・一棟貸・江南市・県道沿い角地 | ||
|---|---|---|---|
| 出展方法 | 一般取引(居抜き) | ||
| 住所 | 愛知県江南市 村久野町仲原 | ||
|---|---|---|---|
| 駐車場台数 | (占有) −台 (共有) −台 | ||
| 前面道路 | 都道府県道 | 号線 | 184号線 |
| 交通手段 | (沿線) − (最寄駅) − (距離) 徒歩 −分 | ||
| 店舗階数 | (店舗) 1階 / (建物) 1階 | 店舗階数:備考 | − |
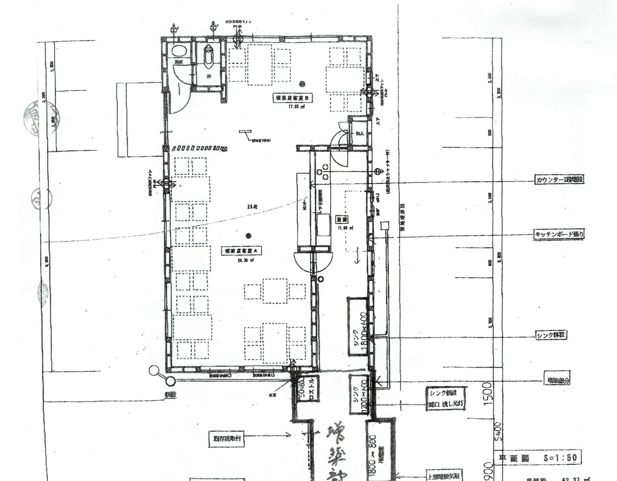
| 建坪数(店舗坪数) | 23.11坪 (76.41平米) | 敷坪数 | 60.66 坪 (200.54 平米) |
| 建物築年 | 2004 年 | ||
| 席数 | (席数) 26席 (備考) − | ||
| 店舗情報:備考 | − | ||
| 店舗種別 | 賃貸物件 | ||
|---|---|---|---|
| 賃料 | 22万円(税込) | 管理費・共益金 | 0万円(税込) |
| 看板使用料 | 0万円 | 敷金・保証金 | 敷金0万円/保証金66万円 |
| 礼金 | 0万円 | ||
| 賃貸借契約種別 | 普通借家 | 賃貸借契約期間 | − |
| 更新料 | 0万円 | 業種制限 | − |
| 入居者制限 | − | 営業時間制限 | − |
| 解約前予告の期間 | −ヶ月前 | 敷金・保証金償却の有無 | 有り |
| 敷金・保証金償却:備考 | 一律50%償却 | ||
| 建築協力金の有無 | 無し | 建築協力金の金額 | − |
| 建築協力金返済期間 | − | 建築協力金:備考 | − |
| 物件管理者情報 | 株式会社林企画(岐阜県知事(2)第5066号) | ||
| 賃貸借条件:備考 | 別契約の駐車場は月額33,000円 | ||
設備情報
| ダクト | 有り | グリスト | 有り |
|---|---|---|---|
| リース残高 | 149.675万円 | リース対象物品 | 冷蔵庫、冷凍庫、食器洗浄機、製氷機、鉄板洗い機 |
| リース:備考 | − | ||
| 直近の改修日 | − | 改修費用 | − |
| 改修の内容 | − | ||
| 譲渡対象外造作物 | − | ||
| 設備情報:備考 | − | ||