[ 73078 ] <造作無償!>北参道駅徒歩3分の1~3階レストラン居抜き物件
★外観/店前動画★https://youtube.com/shorts/5VS4P7CZLRg
●東京メトロ副都心線 北参道 徒歩3分/JR山手線 代々木 徒歩6分/JR総武中央線 千駄ケ谷 徒歩7分
●造作譲渡費:なし
●残置物あり(設備保証なし)
●賃貸保証:要加入
●定期借家契約:5年(再契約不可)
●重飲食相談可/風営法業態/ガールズバー/シーシャ/カラオケ営業/民泊・レンタルスペース等の転貸不可
●外国籍不可
●深夜営業不可
●鍵交換費用:借主負担
●諸条件ご相談ください。
●入居時期:即時
+++++++++++++++++++
※視察のお申込は日程調整の都合上前もってご連絡ください。
※お問い合わせ頂くタイミングにより、決まってしまっている場合がございます。
【電話のお問合せ】
0120-99-8538(平日10時-18時)
物件を見たい・詳しい情報を知りたい、など お気軽にお問合せください。
地域 |
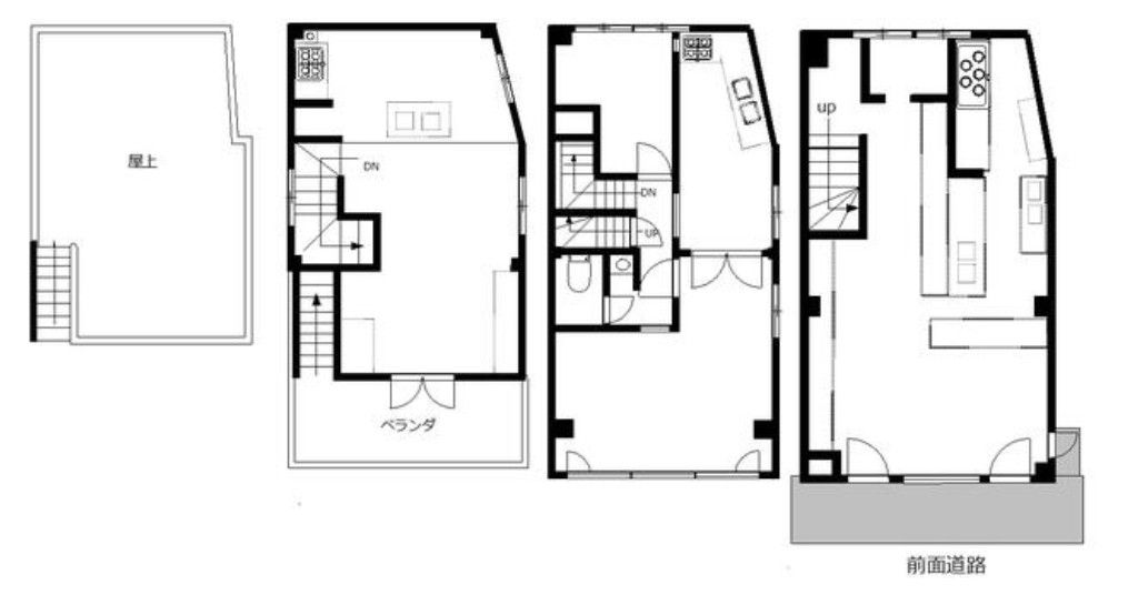
東京都渋谷区 千駄ヶ谷4-22-6千駄ヶ谷4丁目一棟1~3F |
||
業態 |
飲食店 |
||
最寄駅 |
東京メトロ副都心線 北参道駅 |
||
坪数 |
41.77坪 |
賃料 |
80万円 |
階数 |
1階 |
敷金/保証金 |
賃料の8ヶ月分 |
造作価格 |
0万円 |
||
アクセス数 |
268件 |
店舗情報
| 店舗の状態 | 閉店済み | ||
|---|---|---|---|
| 業態:大分類 | 飲食店 | 業態:中分類 | レストラン |
| 業態名 | − | ||
| フランチャイズ区分 | − | フランチャイズブランド名 | − |
| 立地区分 | − | 賃貸借区分 | 賃貸物件 |
| 営業開始年月 | − | 初期投資総額 | − |
| 出展タイトル | <造作無償!>北参道駅徒歩3分の1~3階レストラン居抜き物件 | ||
|---|---|---|---|
| 出展方法 | 一般取引(居抜き) | ||
| 住所 | 東京都渋谷区 千駄ヶ谷4-22-6千駄ヶ谷4丁目一棟1~3F | ||
|---|---|---|---|
| 駐車場台数 | (占有) −台 (共有) −台 | ||
| 前面道路 | − | 号線 | −号線 |
| 交通手段 | (沿線) 東京メトロ副都心線 (最寄駅) 北参道駅 (距離) 徒歩 3分 | ||
| 店舗階数 | (店舗) 1階 / (建物) −階 | 店舗階数:備考 | 1~3階一括貸し |
| 建坪数(店舗坪数) | 41.77坪 (138.09平米) | 敷坪数 | − 坪 (− 平米) |
| 建物築年 | − 年 | ||
| 席数 | (席数) −席 (備考) − | ||
| 店舗情報:備考 | − | ||
| 店舗種別 | 賃貸物件 | ||
|---|---|---|---|
| 賃料 | 80万円(税込) | 管理費・共益金 | 0万円(税込) |
| 看板使用料 | − | 敷金・保証金 | 賃料の8ヶ月分 |
| 礼金 | 0万円 | ||
| 賃貸借契約種別 | 定期借家 | 賃貸借契約期間 | 5年(再契約不可) |
| 更新料 | − | 業種制限 | 重飲食相談可/風営法業態/ガールズバー/シーシャ/カラオケ営業/民泊・レンタルスペース等の転貸不可 |
| 入居者制限 | 外国籍不可 | 営業時間制限 | 深夜営業不可 |
| 解約前予告の期間 | −ヶ月前 | 敷金・保証金償却の有無 | 有り |
| 敷金・保証金償却:備考 | 解約時2ヶ月 | ||
| 建築協力金の有無 | − | 建築協力金の金額 | − |
| 建築協力金返済期間 | − | 建築協力金:備考 | − |
| 物件管理者情報 | 株式会社M&Aオークション(東京都知事(4)第85509号) | ||
| 賃貸借条件:備考 | − | ||
設備情報
| ダクト | − | グリスト | − |
|---|---|---|---|
| リース残高 | − | リース対象物品 | − |
| リース:備考 | − | ||
| 直近の改修日 | − | 改修費用 | − |
| 改修の内容 | − | ||
| 譲渡対象外造作物 | − | ||
| 設備情報:備考 | − | ||