NEW [ 73080 ] <造作無償!>関内駅徒歩8分の3階シーシャバー居抜き物件
●JR京浜東北・根岸線 関内 徒歩8分/横浜高速鉄道みなとみらい線 馬車道 徒歩5分/横浜市ブルーライン 関内 徒歩6分
●造作譲渡費:なし
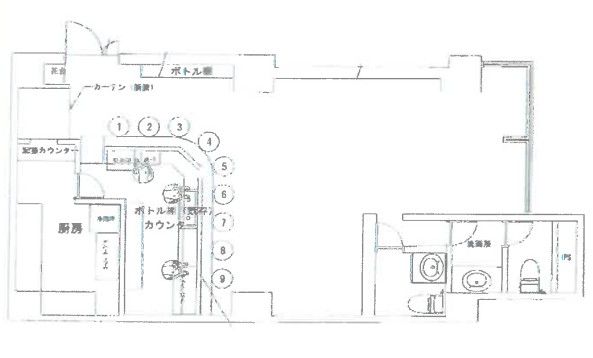
●コールドテーブル×2/冷蔵庫/大型冷凍庫/製氷機/シンク等あり
●重飲食:相談(ダクト(屋上)設置が必要な場合あり)
●外国籍相談 ※内容による
●内装変更をする場合、内装管理費:最大280,005円(工事内容により金額変更あり)
●看板印刷代:165,000円(税込)
●機械警備料:11,000円(税込)/月
●警備カード2枚:3,300円(税込)
●諸条件ご相談ください。
●入居時期:即時
+++++++++++++++++++++++++++++++++
※視察のお申込は日程調整の都合上前もってご連絡ください。
※お問い合わせ頂くタイミングにより、決まってしまっている場合がございます。
【電話のお問合せ】
0120-99-8538(平日10時-18時)
物件を見たい・詳しい情報を知りたい、など お気軽にお問合せください。
地域 |
神奈川県横浜市中区 南仲通1-8SKビル2F_A区画 |
||
業態 |
飲食店 |
||
最寄駅 |
JR根岸線 関内駅 |
||
坪数 |
25.67坪 |
賃料 |
36.7081万円 |
階数 |
2階 |
敷金/保証金 |
0万円/200万円 |
造作価格 |
0万円 |
||
アクセス数 |
4件 |
店舗情報
| 店舗の状態 | − | ||
|---|---|---|---|
| 業態:大分類 | 飲食店 | 業態:中分類 | バー |
| 業態名 | − | ||
| フランチャイズ区分 | − | フランチャイズブランド名 | − |
| 立地区分 | − | 賃貸借区分 | 賃貸物件 |
| 営業開始年月 | − | 初期投資総額 | − |
| 出展タイトル | <造作無償!>関内駅徒歩8分の3階シーシャバー居抜き物件 | ||
|---|---|---|---|
| 出展方法 | 一般取引(居抜き) | ||
| 住所 | 神奈川県横浜市中区 南仲通1-8SKビル2F_A区画 | ||
|---|---|---|---|
| 駐車場台数 | (占有) −台 (共有) −台 | ||
| 前面道路 | − | 号線 | −号線 |
| 交通手段 | (沿線) JR根岸線 (最寄駅) 関内駅 (距離) 徒歩 8分 | ||
| 店舗階数 | (店舗) 2階 / (建物) −階 | 店舗階数:備考 | − |
| 建坪数(店舗坪数) | 25.67坪 (84.85平米) | 敷坪数 | − 坪 (− 平米) |
| 建物築年 | − 年 | ||
| 席数 | (席数) −席 (備考) − | ||
| 店舗情報:備考 | − | ||
| 店舗種別 | 賃貸物件 | ||
|---|---|---|---|
| 賃料 | 36.7081万円(税込) | 管理費・共益金 | 7.0592万円(税込) |
| 看板使用料 | − | 敷金・保証金 | 敷金0万円/保証金200万円 |
| 礼金 | 0万円 | ||
| 賃貸借契約種別 | 普通借家 | 賃貸借契約期間 | 2年 |
| 更新料 | 賃料の1ヶ月分 | 業種制限 | 重飲食相談(匂い・煙の強い業態不可) |
| 入居者制限 | 外国籍相談 | 営業時間制限 | − |
| 解約前予告の期間 | −ヶ月前 | 敷金・保証金償却の有無 | 有り |
| 敷金・保証金償却:備考 | 解約時10% 中途解約違約金10% | ||
| 建築協力金の有無 | − | 建築協力金の金額 | − |
| 建築協力金返済期間 | − | 建築協力金:備考 | − |
| 物件管理者情報 | 株式会社M&Aオークション(東京都知事(4)第85509号) | ||
| 賃貸借条件:備考 | − | ||
設備情報
| ダクト | − | グリスト | − |
|---|---|---|---|
| リース残高 | − | リース対象物品 | − |
| リース:備考 | − | ||
| 直近の改修日 | − | 改修費用 | − |
| 改修の内容 | − | ||
| 譲渡対象外造作物 | − | ||
| 設備情報:備考 | − | ||