NEW [ 73212 ] 1F路面、軽飲食店の居抜き物件
【内覧動画】
https://youtu.be/KjH51BQeGgY
駅徒歩4分の1F路面店です。
スペックは軽飲食向きですが、業態はいろいろと相談可能です。
建物裏手に駐車場1台(月額15,000円:別途契約)あり。
◆内覧対応:平日10:00~17:00(要事前予約)
◆保証会社利用料:初回委託料とは別に、月次2%がかかります。(年払い無し)
◆出店サポート料:賃料1ヶ月分
→契約は名義変更として締結していただきます。
◎ 諸条件ご相談ください。 +++++++++++++++++++++++++++
※視察の申込は日程調整の都合上、前もってご連絡ください。
※お問い合わせ頂くタイミングにより、他の方で契約が決まってしまっている場合がございます。
【電話のお問合せ】
0120-99-8538(平日10:00-18:00)
「物件を見たい」「詳しい情報を知りたい」など、お気軽にお問合せください。
地域 |
埼玉県蓮田市 本町2 |
||
業態 |
飲食店 |
||
最寄駅 |
宇都宮線 蓮田駅 |
||
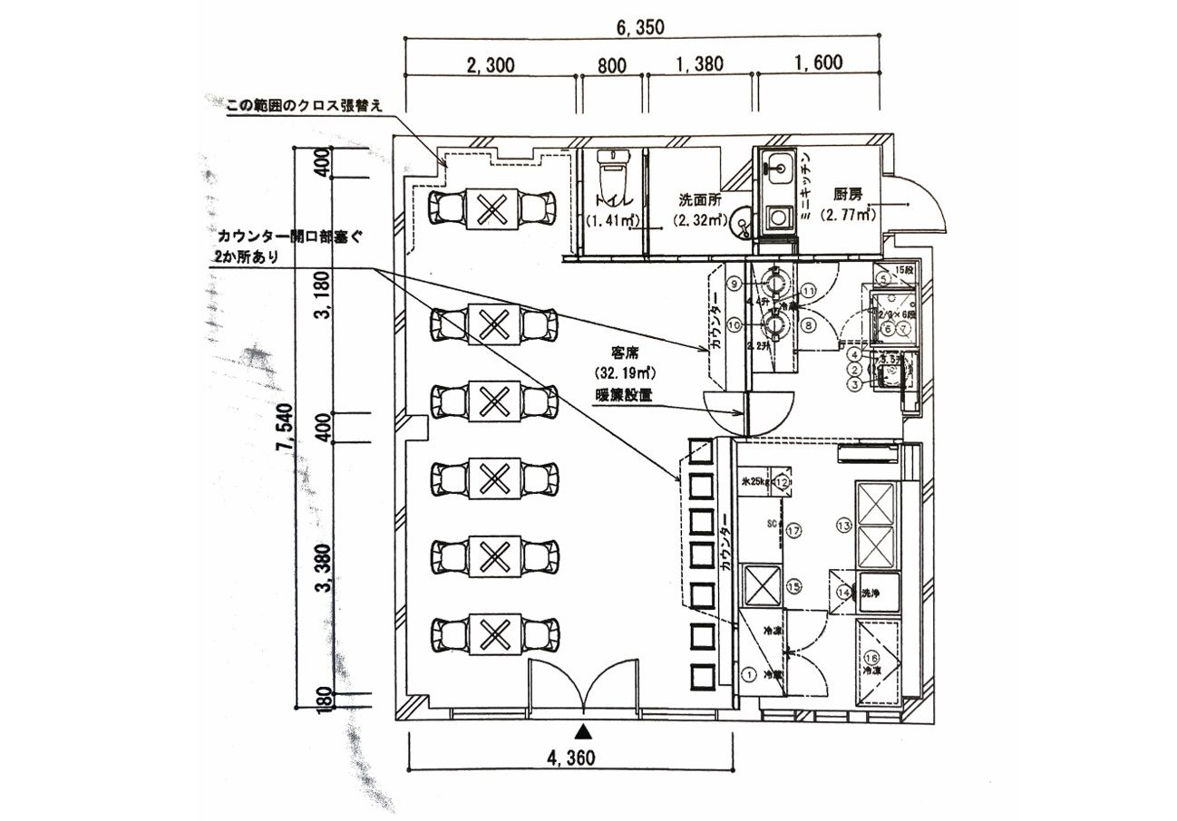
坪数 |
17.11坪 |
賃料 |
16.94万円 |
階数 |
1階 |
敷金/保証金 |
賃料の4ヶ月分 |
造作価格 |
250万円 |
||
アクセス数 |
16件 |
店舗情報
| 店舗の状態 | 休業中 | ||
|---|---|---|---|
| 業態:大分類 | 飲食店 | 業態:中分類 | 和食・とんかつ・うなぎ |
| 業態名 | − | ||
| フランチャイズ区分 | − | フランチャイズブランド名 | − |
| 立地区分 | − | 賃貸借区分 | 賃貸物件 |
| 営業開始年月 | − | 初期投資総額 | − |
| 出展タイトル | 1F路面、軽飲食店の居抜き物件 | ||
|---|---|---|---|
| 出展方法 | 一般取引(居抜き) | ||
| 住所 | 埼玉県蓮田市 本町2 | ||
|---|---|---|---|
| 駐車場台数 | (占有) −台 (共有) −台 | ||
| 前面道路 | − | 号線 | −号線 |
| 交通手段 | (沿線) 宇都宮線 (最寄駅) 蓮田駅 (距離) 徒歩 4分 | ||
| 店舗階数 | (店舗) 1階 / (建物) −階 | 店舗階数:備考 | 鉄骨造 |
| 建坪数(店舗坪数) | 17.11坪 (56.55平米) | 敷坪数 | − 坪 (− 平米) |
| 建物築年 | − 年 | ||
| 席数 | (席数) −席 (備考) − | ||
| 店舗情報:備考 | − | ||
| 店舗種別 | 賃貸物件 | ||
|---|---|---|---|
| 賃料 | 16.94万円(税込) | 管理費・共益金 | 0.55万円(税込) |
| 看板使用料 | − | 敷金・保証金 | 賃料の4ヶ月分 |
| 礼金 | 賃料の1ヶ月分 | ||
| 賃貸借契約種別 | 普通借家 | 賃貸借契約期間 | 普通借家3年 |
| 更新料 | 0万円 | 業種制限 | 重飲食:相談(匂い煙の多い業態不可) |
| 入居者制限 | 外国籍:相談 | 営業時間制限 | − |
| 解約前予告の期間 | −ヶ月前 | 敷金・保証金償却の有無 | なし |
| 敷金・保証金償却:備考 | − | ||
| 建築協力金の有無 | − | 建築協力金の金額 | − |
| 建築協力金返済期間 | − | 建築協力金:備考 | − |
| 物件管理者情報 | 株式会社M&Aオークション(東京都知事(4)第85509号) | ||
| 賃貸借条件:備考 | 賃貸保証:要加入(初回50~100%) | ||
設備情報
| ダクト | なし(換気扇) | グリスト | なし(キッチン床ドライ) |
|---|---|---|---|
| リース残高 | − | リース対象物品 | − |
| リース:備考 | − | ||
| 直近の改修日 | − | 改修費用 | − |
| 改修の内容 | − | ||
| 譲渡対象外造作物 | − | ||
| 設備情報:備考 | − | ||