NEW [ 73276 ] 大久保駅2分 居酒屋居抜き
●大久保駅 徒歩1分
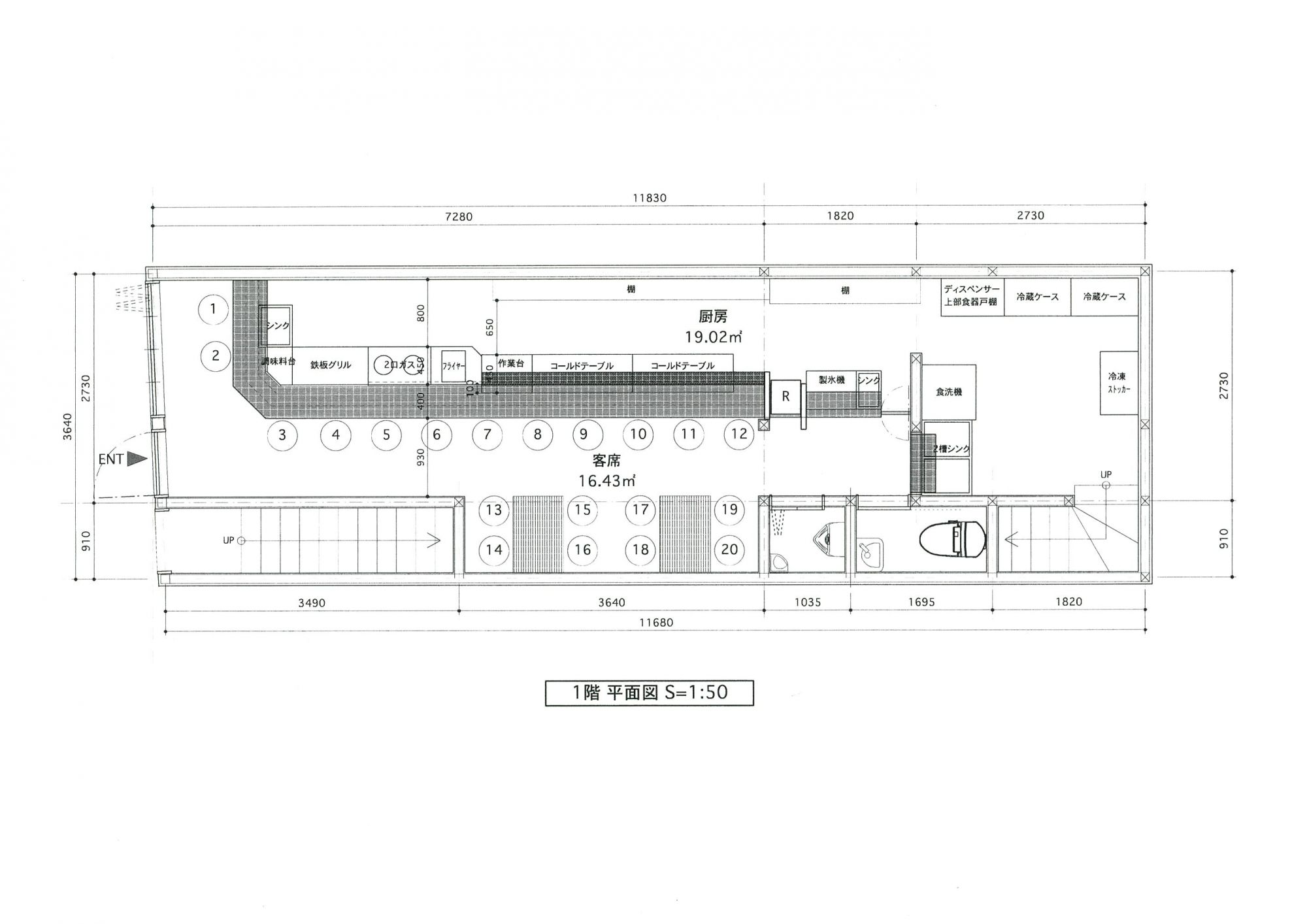
●1階:約13坪 2階:約4坪(スタッフルーム)
●造作譲渡費:無償
●厨房機器含む残置物あり
●賃貸保証:要加入
●席数:20席
●諸条件ご相談ください。
●入居時期:即時
+++++++++++++++++++++++++++++++++
※各種条件に関しまして変更になる可能性がございます。
※視察のお申込は日程調整の都合上前もってご連絡ください。
※お問い合わせ頂くタイミングにより、決まってしまっている場合がございます。
地域 |
埼玉県新宿区 百人町 |
||
業態 |
飲食店 |
||
最寄駅 |
JR中央・総武線 大久保駅 |
||
坪数 |
17.00坪 |
賃料 |
77万円 |
階数 |
1階 |
敷金/保証金 |
賃料の4ヶ月分 |
造作価格 |
0万円 |
||
アクセス数 |
5件 |
店舗情報
| 店舗の状態 | 営業中 | ||
|---|---|---|---|
| 業態:大分類 | 飲食店 | 業態:中分類 | 居酒屋 |
| 業態名 | − | ||
| フランチャイズ区分 | − | フランチャイズブランド名 | − |
| 立地区分 | − | 賃貸借区分 | 賃貸物件 |
| 営業開始年月 | − | 初期投資総額 | − |
| 出展タイトル | 大久保駅2分 居酒屋居抜き | ||
|---|---|---|---|
| 出展方法 | 一般取引(居抜き) | ||
| 住所 | 埼玉県新宿区 百人町 | ||
|---|---|---|---|
| 駐車場台数 | (占有) −台 (共有) −台 | ||
| 前面道路 | − | 号線 | −号線 |
| 交通手段 | (沿線) JR中央・総武線 (最寄駅) 大久保駅 (距離) 徒歩 2分 | ||
| 店舗階数 | (店舗) 1階 / (建物) −階 | 店舗階数:備考 | 1階:約13坪/2階:約4坪 |
| 建坪数(店舗坪数) | 17坪 (56.2平米) | 敷坪数 | − 坪 (− 平米) |
| 建物築年 | − 年 | ||
| 席数 | (席数) −席 (備考) − | ||
| 店舗情報:備考 | − | ||
| 店舗種別 | 賃貸物件 | ||
|---|---|---|---|
| 賃料 | 77万円(税込) | 管理費・共益金 | 0万円(税込) |
| 看板使用料 | − | 敷金・保証金 | 賃料の4ヶ月分 |
| 礼金 | 賃料の2ヶ月分 | ||
| 賃貸借契約種別 | 普通借家 | 賃貸借契約期間 | − |
| 更新料 | − | 業種制限 | 無し |
| 入居者制限 | 無し | 営業時間制限 | 無し |
| 解約前予告の期間 | −ヶ月前 | 敷金・保証金償却の有無 | 有り |
| 敷金・保証金償却:備考 | 解約時1ヶ月 | ||
| 建築協力金の有無 | − | 建築協力金の金額 | − |
| 建築協力金返済期間 | − | 建築協力金:備考 | − |
| 物件管理者情報 | 株式会社M&Aオークション(東京都知事(4)第85509号) | ||
| 賃貸借条件:備考 | − | ||
設備情報
| ダクト | − | グリスト | − |
|---|---|---|---|
| リース残高 | − | リース対象物品 | − |
| リース:備考 | − | ||
| 直近の改修日 | − | 改修費用 | − |
| 改修の内容 | − | ||
| 譲渡対象外造作物 | − | ||
| 設備情報:備考 | − | ||