NEW [ 69377 ] JR「神田駅」徒歩1分!西口繁華街エリア2階元飲食店跡物件☆
JR「神田駅」徒歩1分!
西口繁華街エリア2階元飲食跡物件
NG業態:風営法不可
設備:エアコン2台
仲介手数料:賃料1か月
保証会社/保険:要加入
引渡し:即入居可
*公正証書契約
地域 |
東京都千代田区 内神田3丁目 |
||
業態 |
飲食店 |
||
最寄駅 |
JR山手線 神田駅 |
||
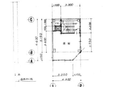
坪数 |
5.70坪 |
賃料 |
24.75万円 |
階数 |
2階 |
敷金/保証金 |
賃料の10ヶ月分 |
造作価格 |
0万円 |
アクセス数 |
345件 |
店舗情報
店舗の状態 | − | ||
---|---|---|---|
業態:大分類 | 飲食店 | 業態:中分類 | 居酒屋 |
業態名 | − | ||
フランチャイズ区分 | − | フランチャイズブランド名 | − |
立地区分 | − | 賃貸借区分 | 賃貸物件 |
営業開始年月 | − | 初期投資総額 | − |
出展タイトル | JR「神田駅」徒歩1分!西口繁華街エリア2階元飲食店跡物件☆ | ||
---|---|---|---|
出展方法 | 一般取引(居抜き) | ||
住所 | 東京都千代田区 内神田3丁目 | ||
---|---|---|---|
駐車場台数 | (占有) −台 (共有) −台 | ||
前面道路 | − | 号線 | −号線 |
交通手段 | (沿線) JR山手線 (最寄駅) 神田駅 (距離) 徒歩 1分 | ||
店舗階数 | (店舗) 2階 / (建物) −階 | 店舗階数:備考 | − |
建坪数(店舗坪数) | 5.7坪 (18.84平米) | 敷坪数 | − 坪 (− 平米) |
建物築年 | − 年 | ||
席数 | (席数) −席 (備考) − | ||
店舗情報:備考 | − |
店舗種別 | 賃貸物件 | ||
---|---|---|---|
賃料 | 24.75万円(税込) | 管理費・共益金 | 2.2万円(税込) |
看板使用料 | − | 敷金・保証金 | 賃料の10ヶ月分 |
礼金 | 賃料の1ヶ月分 | ||
賃貸借契約種別 | 定期借家 | 賃貸借契約期間 | 3年*再契約料:新賃料1か月分 |
更新料 | 賃料の1.5ヶ月分 | 業種制限 | − |
入居者制限 | − | 営業時間制限 | − |
解約前予告の期間 | −ヶ月前 | 敷金・保証金償却の有無 | 有り |
敷金・保証金償却:備考 | 1か月 | ||
建築協力金の有無 | − | 建築協力金の金額 | − |
建築協力金返済期間 | − | 建築協力金:備考 | − |
物件管理者情報 | 株式会社ウェンズインターナショナル | ||
賃貸借条件:備考 | − |
設備情報
ダクト | − | グリスト | − |
---|---|---|---|
リース残高 | − | リース対象物品 | − |
リース:備考 | − | ||
直近の改修日 | − | 改修費用 | − |
改修の内容 | − | ||
譲渡対象外造作物 | − | ||
設備情報:備考 | − |