[ 69969 ] 荻窪駅徒歩2分の商店街沿い1階路面角地!寿司店居抜き物件
★外観/店前動画★https://youtube.com/shorts/Et0uUwGDUoY
●JR中央本線・JR総武・中央緩行線・東京メトロ丸ノ内線 荻窪 徒歩2分
●造作譲渡費:相談
●高級カウンター有/ビールサーバー等、一部リース有
●賃貸保証:要加入
●重飲食不可(居酒屋程度相談)/性風俗店舗・キャバクラ・セクシー系のガールズバー不可
●外国籍可
●看板料 (袖看板込):11,000円~
※看板や造作状況によっては保証金の積み増し有
●鍵交換費用 27,500円/1か所(税込)
●短期解約違約金あり(2年未満: 賃料等1ヶ月相当額/1年未満:賃料等2ヶ月相当額)
●駐車場:近隣有り
●ゴミ出し: 事業者専門の産業廃棄物業者利用
●諸条件ご相談ください。
●入居時期:即時
++++++++++++++++++
※視察のお申込は日程調整の都合上前もってご連絡ください。
※お問い合わせ頂くタイミングにより、決まってしまっている場合がございます。
【電話のお問合せ】
0120-99-8538(平日10時-18時)
物件を見たい・詳しい情報を知りたい、など お気軽にお問合せください。
地域 |
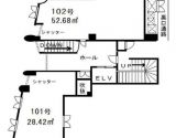
東京都杉並区 上荻1-17-7第五田丸ビル1F102 |
||
業態 |
飲食店 |
||
最寄駅 |
JR中央線(快速) 荻窪駅 |
||
坪数 |
15.94坪 |
賃料 |
42.9万円 |
階数 |
1階 |
敷金/保証金 |
賃料の8ヶ月分 |
造作価格 |
応相談 |
アクセス数 |
167件 |
店舗情報
店舗の状態 | 閉店済み | ||
---|---|---|---|
業態:大分類 | 飲食店 | 業態:中分類 | 寿司・割烹 |
業態名 | − | ||
フランチャイズ区分 | − | フランチャイズブランド名 | − |
立地区分 | − | 賃貸借区分 | 賃貸物件 |
営業開始年月 | − | 初期投資総額 | − |
出展タイトル | 荻窪駅徒歩2分の商店街沿い1階路面角地!寿司店居抜き物件 | ||
---|---|---|---|
出展方法 | 一般取引(居抜き) | ||
住所 | 東京都杉並区 上荻1-17-7第五田丸ビル1F102 | ||
---|---|---|---|
駐車場台数 | (占有) −台 (共有) −台 | ||
前面道路 | − | 号線 | −号線 |
交通手段 | (沿線) JR中央線(快速) (最寄駅) 荻窪駅 (距離) 徒歩 2分 | ||
店舗階数 | (店舗) 1階 / (建物) −階 | 店舗階数:備考 | − |
建坪数(店舗坪数) | 15.94坪 (52.68平米) | 敷坪数 | − 坪 (− 平米) |
建物築年 | − 年 | ||
席数 | (席数) −席 (備考) − | ||
店舗情報:備考 | − |
店舗種別 | 賃貸物件 | ||
---|---|---|---|
賃料 | 42.9万円(税込) | 管理費・共益金 | 1.87万円(税込) |
看板使用料 | − | 敷金・保証金 | 賃料の8ヶ月分 |
礼金 | 賃料の2ヶ月分 | ||
賃貸借契約種別 | 普通借家 | 賃貸借契約期間 | 3年 |
更新料 | 賃料の1.5ヶ月分 | 業種制限 | 重飲食不可(居酒屋程度相談)/性風俗店舗・キャバクラ・セクシー系のガールズバー不可 |
入居者制限 | − | 営業時間制限 | − |
解約前予告の期間 | −ヶ月前 | 敷金・保証金償却の有無 | 有り |
敷金・保証金償却:備考 | 解約時2ヶ月 | ||
建築協力金の有無 | − | 建築協力金の金額 | − |
建築協力金返済期間 | − | 建築協力金:備考 | − |
物件管理者情報 | 株式会社M&Aオークション(東京都知事(4)第85509号) | ||
賃貸借条件:備考 | − |
設備情報
ダクト | − | グリスト | − |
---|---|---|---|
リース残高 | − | リース対象物品 | − |
リース:備考 | − | ||
直近の改修日 | − | 改修費用 | − |
改修の内容 | − | ||
譲渡対象外造作物 | − | ||
設備情報:備考 | − |