[ 69997 ] 赤レンガ通りすぐ!新橋駅徒歩6分の1~4階弁当店居抜き物件
★外観/店前動画★https://youtube.com/shorts/2V7k4Xrh55M
●JR山手線 新橋 徒歩6分/都営三田線 御成門 徒歩6分/都営大江戸線 汐留 徒歩8分
●造作譲渡費:なし
●厨房機器なし/一部スケルトン
●賃貸保証:要加入
●重飲食:相談可
●外国籍:相談可
●ガスメーター:16号メーター
●諸条件ご相談ください。
●入居時期:即時
++++++++++++++++++++++
※視察のお申込は日程調整の都合上前もってご連絡ください。
※お問い合わせ頂くタイミングにより、決まってしまっている場合がございます。
【電話のお問合せ】
0120-99-8538(平日10時-18時)
物件を見たい・詳しい情報を知りたい、など お気軽にお問合せください。
地域 |
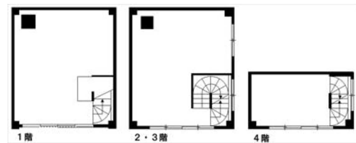
東京都港区 新橋5-5-2第二トミタビル1~4F一棟 |
||
業態 |
飲食店 |
||
最寄駅 |
JR山手線 新橋駅 |
||
坪数 |
31.37坪 |
賃料 |
55万円 |
階数 |
1階 |
敷金/保証金 |
0万円/600万円 |
造作価格 |
0万円 |
アクセス数 |
221件 |
店舗情報
店舗の状態 | 閉店済み | ||
---|---|---|---|
業態:大分類 | 飲食店 | 業態:中分類 | 弁当・惣菜 |
業態名 | − | ||
フランチャイズ区分 | − | フランチャイズブランド名 | − |
立地区分 | − | 賃貸借区分 | 賃貸物件 |
営業開始年月 | − | 初期投資総額 | − |
出展タイトル | 赤レンガ通りすぐ!新橋駅徒歩6分の1~4階弁当店居抜き物件 | ||
---|---|---|---|
出展方法 | 一般取引(居抜き) | ||
住所 | 東京都港区 新橋5-5-2第二トミタビル1~4F一棟 | ||
---|---|---|---|
駐車場台数 | (占有) −台 (共有) −台 | ||
前面道路 | − | 号線 | −号線 |
交通手段 | (沿線) JR山手線 (最寄駅) 新橋駅 (距離) 徒歩 6分 | ||
店舗階数 | (店舗) 1階 / (建物) −階 | 店舗階数:備考 | 1~4階一括貸し |
建坪数(店舗坪数) | 31.37坪 (103.71平米) | 敷坪数 | − 坪 (− 平米) |
建物築年 | − 年 | ||
席数 | (席数) −席 (備考) − | ||
店舗情報:備考 | − |
店舗種別 | 賃貸物件 | ||
---|---|---|---|
賃料 | 55万円(税込) | 管理費・共益金 | 0万円(税込) |
看板使用料 | − | 敷金・保証金 | 敷金0万円/保証金600万円 |
礼金 | 0万円 | ||
賃貸借契約種別 | 普通借家 | 賃貸借契約期間 | 2年 |
更新料 | 賃料の1ヶ月分 | 業種制限 | 重飲食相談可 |
入居者制限 | 外国籍相談可 | 営業時間制限 | − |
解約前予告の期間 | −ヶ月前 | 敷金・保証金償却の有無 | 有り |
敷金・保証金償却:備考 | 解約時2ヶ月 | ||
建築協力金の有無 | − | 建築協力金の金額 | − |
建築協力金返済期間 | − | 建築協力金:備考 | − |
物件管理者情報 | 株式会社M&Aオークション(東京都知事(4)第85509号) | ||
賃貸借条件:備考 | − |
設備情報
ダクト | − | グリスト | − |
---|---|---|---|
リース残高 | − | リース対象物品 | − |
リース:備考 | − | ||
直近の改修日 | − | 改修費用 | − |
改修の内容 | − | ||
譲渡対象外造作物 | − | ||
設備情報:備考 | − |